Current Path:Home » 业务范围 » 模块箱体设计 » The text

模块箱体设计

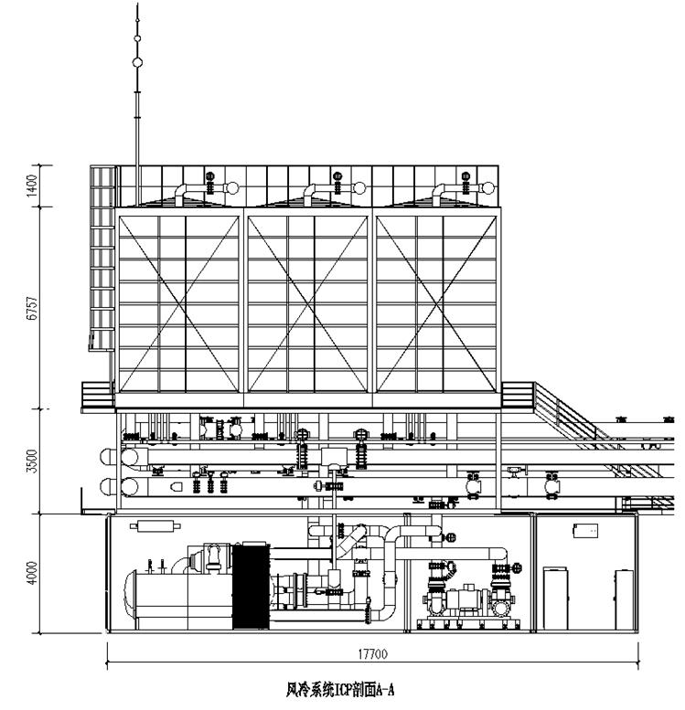
这几年,我们承接了大量数据中心模块化冷站的设计、制造业务。我们团队是钢结构设计公司,转型做模块化箱体和钢结构制造,非常熟悉箱体制造环节特殊的制造工艺和产品细节。

更多内容,请参照我们的微信视频号:慧盖集装箱

模块箱体设计
模块箱体设计
模块箱体设计
模块箱体设计
未经允许不得转载:Steeler上海缇勒钢结构设计工程有限公司 » 模块箱体设计
Share to
Prev page

相关推荐

No data

联系我们

17717621528

CopyCopied
1356745727CopyCopied
steeler@steeler.cnCopyCopied
钢结构设计 公众号
17717621528CopyCopied
关注官方微信,了解最新资讯
contact-img
客服QQ
1356745727CopyCopied
商务号,添加请说明来意